Глава 6. Автоматизация проектирования

Содержание

6.1. Создание слоев и настройка их параметров
6.1.1. Инструмент «Диспетчер свойств слоев»
6.1.2. Изменение типа линии
6.1.3. Назначение слоя текущим в окне «Диспетчер свойств слоев»
6.2. Распределение объектов чертежа по слоям
6.2.1. Использование списка слоев панели инструментов «Слои»
6.2.2. Использование инструмента «Cменить на текущий слой»
6.3. Создание новых объектов с использованием слоев
6.3.1. Управление видимостью слоев с помощью замораживания
6.3.2. Инструмент «Копировать объекты в новый слой»
6.3.3. Настройка масштаба линии
6.3.4. Создание объектов на слоях путем копирования
6.3.5. Копирование объектов со слоя на слой со смещением
6.3.6. Переименование и удаление слоев
6.4. Группы и блок
6.5. Создание и использование групп
6.5.1. Создание группы с помощью команды «Группа»
6.5.2. Использование и удаление групп
6.6. Создание и использование блоков
6.6.1. Инструмент «Расчленить»
6.6.2. Инструмент «Создать блок»
6.6.3. Инструмент «Вставить блок»
6.6.4. Вставка блока с масштабированием и отображением
6.6.5. Использование инструментов «Список» и «Свойства»

В главе использованы материалы [KLIM].

Наш чертеж стал уже достаточно сложным, что требует принятия каких-то мер для его упрощения. Кроме того, на чертеже пока еще отсутствует целый ряд объектов, расположенных в верхней части рабочей зоны. Если мы их начнем наносить на чертеж в его текущем состоянии, то в конце получим нагромождение линий, в котором будет трудно разобраться даже автору такого чертежа.

С другой стороны, наш чертеж выглядит  не совсем корректно с точки зрения стандартов оформления чертежей. Как вы помните, некоторые объекты (например, верхние крышки тумб, фасады и т. п.) на чертеже выглядят «прозрачными», тогда как другие (сканер, дисплей, лампа) – «непрозрачными». Нужно навести порядок и в этом вопросе, чтобы дальнейшие построения выполнялись в соответствии с требованиями чертежных стандартов.

Для решения этих проблем мы воспользуемся таким средством AutoCAD, как слои. Слой (layer) – это что_то вроде листа прозрачной кальки. Представьте, например, что вы создаете чертеж автомобиля с нанесенными на него линиями трасс всех систем (гидравлической, пневматической, топливной и т. п.). В те времена, когда чертежи создавались на бумаге, при возникновении необходимости внесения существенных изменений в какую_то систему (например, замену пневматической системы электрической), приходилось перечерчивать весь чертеж.

Поэтому конструкторы придумали такой прием: основные конструктивные элементы чертились на одном листе кальки, а каждая система – на последующих листах. Наложив все листы кальки один на другой, можно было получить изображение всего изделия. Например, если было видно, что бак гидросистемы расположен неудачно, конструкторам нужно было изменить чертеж только на том листе кальки, на котором находились объекты гидросистемы.

Слои AutoCAD в чем_то напоминают эти листы кальки. Однако при этом использовать слои в AutoCAD можно гораздо гибче, чем листы кальки при традиционном черчении. Во_первых, количество слоев в AutoCAD ничем не ограниченно (использование листов кальки ограничивалось четырьмя_пятью листами из_за ее ограниченной прозрачности). Во_вторых, объекты, помещенные на разные слои AutoCAD, вовсе не должны накладываться один на другой. Часто в AutoCAD слои используются для разграничения функциональности различных объектов чертежа (например, на одном слое – валы редуктора, на другом – подшипники, на третьем – зубчатые колеса и т. п.). В других случаях удобно разносить объекты по слоям, основываясь на материале, из которых они изготовлены, и (или) на отделке поверхности объектов.

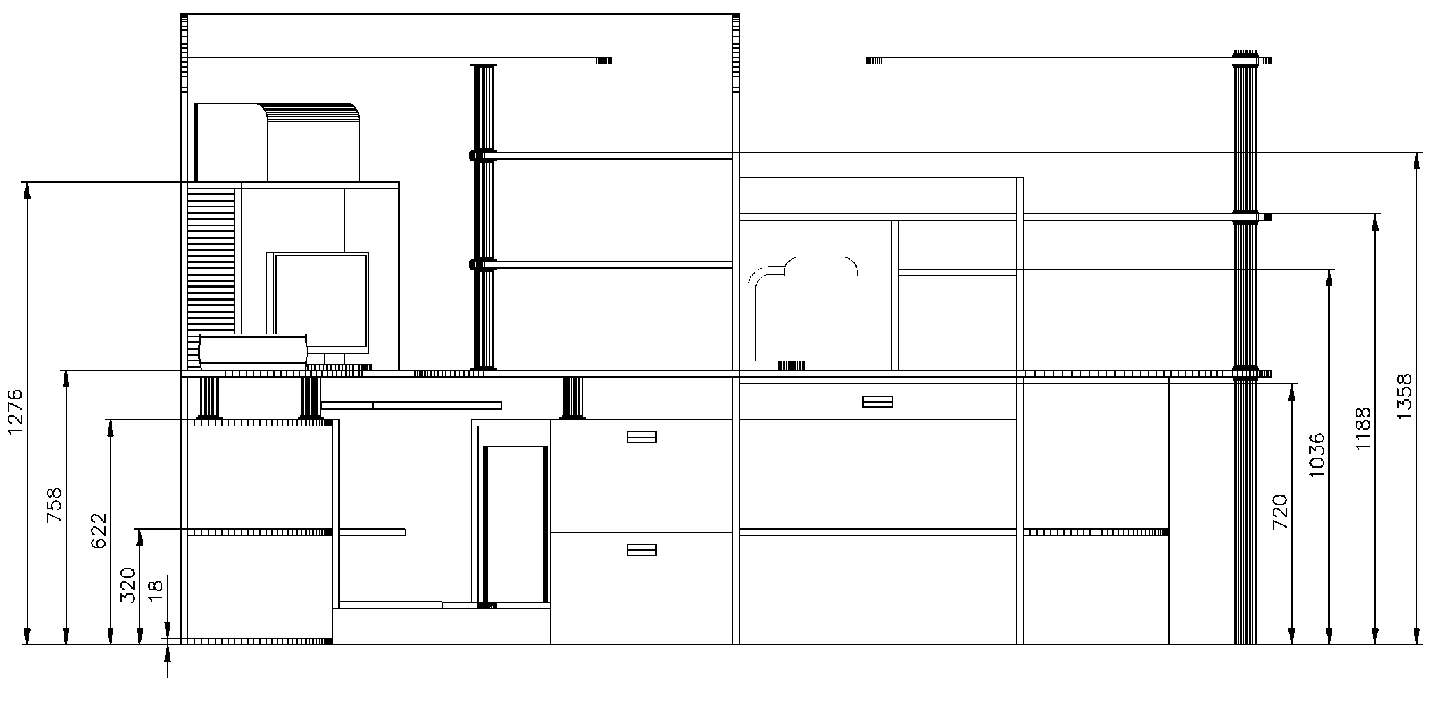
В нашем случае мы воспользуемся слоями для того, чтобы разнести объекты по высоте. На рис. 6.1 представлен чертеж рабочей зоны на виде спереди с указанием основных высот (слева направо): 1276, 758, 622, 320, 18, 720, 1036, 1188 и 1358 мм.

Рисунок 6.1. Чертеж 1

Чертеж 1

Как видно из рис. 6.1, полученный к настоящему времени чертеж примерно соответствует высоте 720 мм. При этом на нем имеется часть объектов, которые расположены над столешницей и, соответственно, не должны быть видимы на этом чертежа. С другой стороны, на высоте 720 мм не должны быть видимы также объекты, которые расположены ниже этой высоты и закрыты другими объектами (например, боковые стенки тумб, системный блок, полка парты и др.).

Поэтому в нашем случае мы создадим слои по высотам, а затем займемся разнесением по этим слоям уже имеющихся объектов. Новые объекты мы будем создавать сразу на соответствующих слоях. Таким образом, в итоге мы получим чертежи всех объектов рабочей зоны, но при этом не будем загромождать чер_

теж вида сверху рабочей зоны лишними объектами.

6.1. Создание слоев и настройка их параметров

В любом документе AutoCAD всегда имеется как минимум один слой, который называют нулевым, поскольку он имеет имя 0. Если вы не создали в чертеже ни одного слоя, это означает, что все объекты чертежа находятся на нулевом слое. Проводя аналогии, можно сказать, что нулевой слой – это что_то вроде того, что юристы называют «лицами без гражданства». Тогда любой созданный пользователем слой – это «гражданство» какой_то конкретной «страны».

Все объекты AutoCAD являются либо «лицами без гражданства» (то есть принадлежат нулевому слою), либо «гражданами» того или иного слоя. В отличие от нас с вами, объекты AutoCAD не могут иметь «двойного гражданства» (то есть не могут принадлежать одновременно двум слоям) – при перемещении объекта на другой слой он немедленно получает соответствующее «гражданство».

В дальнейшем мы будем оперировать не юридическими терминами вроде «гражданства» объектов, а техническими – если объект принадлежит какому-то слою, автор будет говорить, что он расположен на этом слое. Объект можно расположить на слое двумя методами: либо сначала создать его на произвольном слое (например, на нулевом), а затем переместить его на нужный слой, либо сразу создать объект на нужном слое. Хотя второй метод, как правило, предпочтительнее, на практике приходиться пользоваться обоими методами.

6.1.1. Инструмент «Диспетчер свойств слоев»

Поскольку в нашем случае объектов на чертеже более чем достаточно, мы прибегнем к первому методу – создадим несколько слоев и переместим на них объекты чертежа.

1. Запустите AutoCAD, откройте файл Work054.dwg и, сохраните его в файле Work061.dwg.

2. Щелкните правой кнопкой мыши на любой панели инструментов и выберите в списке панелей инструментов пункты Cлои  и Слои II.

3. Если нужно, переместите появившиеся панели инструментов Cлои и Слои II в верхнюю часть окна, чтобы они пристыковались ниже панели инструментов Standard вдоль верхней горизонтальной границы области черчения.

4. Щелкните на кнопке Диспетчер свойств слоев панели инструментов Cлои (первая кнопка слева).

На экране появится диалоговое окно Диспетчер свойств слоев. Как видно в списке слоев этого окна представлен лишь нулевой слой, что, как мы уже обсудили выше, понятно, поскольку вы еще не создали в текущем чертеже ни одного слоя.

Примечание. Каждый слой характеризуется четырьмя свойствами: цветом линии, ее типом  и шириной, а также стилем печати. Обратите внимание на квадратик и слово белый в столбце Цвет строки, соответствующей нулевому слою. Квадрат закрашен в черный цвет (или белый, если вы предпочитаете работать с черным фоном), но его название не зависит от того, является ли он на самом деле белым или черным. Слово Continuous, указанное в столбце Тип линий, свидетельствует о том, что нулевому слою по умолчанию соответствуют сплошные (continuous) линии цвета белый.

Слева от столбца Цвет расположено три столбца: Вкл, Заморозить и Блокировать. Пиктограммы, представленные в качестве значений параметров конкретного слоя для соответствующего столбца, позволяют судить о текущих свойствах слоя.

Создадим девять новых слоев, назовем их и выберем для них цвет линий.

5. Щелкните на кнопке Создать слой. В списке появится новый слой с именем Слой1. Имя нового слоя будет выделено, что позволит сразу же переименовать его.

6. Введите Высота 1276. Название Слой1 изменится на Высота 1276 и по-прежнему будет выделено.

7. Щелкните на слове белый, находящемся на пересечении столбца Цвет и строки Высота 1276. На экране появится диалоговое окно Выбор цвета . Перейдите, если нужно на вкладку Номер цвета этого диалогового окна и введите в строке Цвет значение 164, после чего текущим станет темно-синий цвет.

8. Щелкните на кнопке OK. Диалоговое окно Выбор цвета закроется, а в списке слоев диалогового окна Диспетчер свойств слоев обозначающий цвета слоя Высота 1276 также изменит свой цвет на темно-синий.

На вкладке Номер цвета диалогового окна Выбор цвета, помимо девяти стандартных цветов, представленных в виде расположенной под основной палитрой полосы, можно выбрать одну из шести градаций серого, задать два логических цвета (черный  и белый), а также выбрать любой цвет из 256 цветов полной палитры либо ввести его значение (индекс) в 256_цветной палитре. Цвета с индексами от 1 до 7 (первые семь стандартных цветов) имеют собственные имена. Это означает, что их можно выбирать, как вводя в строке Цвет индекс, так и имя (красный (red), желтый (yellow) и т. д.). Остальные цвета (с 8 по 255) различаются по номерам. Цвет с индексом 7 называется White, но его цвет назначается в зависимости от того, какой цвет используется в качестве фонового.

При черчении на плоскости в подавляющем большинстве случаев достаточно стандартной палитры, поэтому в дальнейшем мы будем использовать только вкладку Номер цвета.

Теперь вернемся к стоящей перед нами задаче создания слоев и назначения им соответствующих цветов.

9. Щелкните на кнопке Создать слой диалогового окна Диспетчер свойств слоев, чтобы добавить новый слой.

10. Переименуйте новый слой на Высота 758.

11. Щелкните на квадратике цвета в строке, соответствующей слою Высота 758. В появившемся диалоговом окне Выбор цвета введите в строке Цвет значение 144 (темно-зеленый цвет), после чего щелкните на кнопке OK .

12. Повторите пп. 9–11 для всех остальных слоев, назначив им цвета в соответствии с табл. 6.1.

Таблица 6.1. Параметры основных слоев вида сверху

Название слоя        Цвет

Высота 622         126

Высота 320         56

Высота 18         24

Высота 720         155

Высота 1036         185

Высота 1188         234

Высота 1358         204

После завершения этой операции в списке должны быть перечислены названия десяти слоев и  соответствующие им цвета. Всем слоям поумолчанию назначен тип линии Continuous. В нашем случае так и должно быть, поскольку мы не будем показывать на чертеже невидимые линии. Исключение сделаем лишь для системного блока – на слоях Высота 622 и Высота 720 мы покажем его контуры, скрытые крышкой тумбы системного блока, с помощью штриховой линии.

6.1.2. Изменение типа линии

При выборе цвета слоя пользователь волен выбирать любой цвет, отображаемый в окне Выбор цвета. Однако назначение типов линий – немного более сложный процесс. В любом новом чертеже пользователь по умолчанию может использовать два типа линий – непрерывные (Continuous) и пунктирные (DOT). Все остальные типы линий нужно загружать из внешнего файла.

13. Для начала создайте еще два слоя с именами СБлок Н и СБлок П и назначьте обоим слоям одинаковый цвет (автор использует цвет с индексом 224).

14. Щелкните на слове Continuous в строке слоя СБлок П, что приведет к открытию диалогового окна Выбор типа линий. Как видите, в списке Загруженные типы линий отображается стандартный типа линий: Continuous.

15 Щелкните на кнопке Загрузить, которая находится в нижней части окна Выбор типа линий. На экране появится диалоговое окно Загрузка/перезагрузка типовой линии, в списке Доступные типы линий которого перечислены все типы линий, определенные в файле acadiso.lin.

16. Щелкните в этом списке на элементе ACAD_ISO02W100, а затем щелкните на кнопке OK.

17. Вернувшись в диалоговое окно Выбор типа линий, вы увидите, что теперь в списке Загруженные типы линий этого окна, кроме стандартных типов линий, появился только что выбранный вами тип. Выберите его и щелкните на кнопке OK. В диалоговом окне Диспетчер свойств слоев  слою СБлок П будет присвоен тип линии ACAD_ISO02W100.

6.1.3. Назначение слоя текущим в окне «Диспетчер свойств слоев»

В верхней части диалогового окна Диспетчер свойств слоев над списком слоев находится, кроме уже рассмотренной выше кнопки Создать слой и кнопки Удалить слой, с помощью которой можно удалить ненужный слой, кнопка Установить. С помощью этой кнопки любой слой, выделенный в списке слоев окна Диспетчер свойств слоев, можно назначить текущим. По умолчанию текущим является нулевой слой, о чем можно судить по наличию зеленой «галочки» рядом с названием слоя в списке слоев, а также по указанию названия слоя в текстовой области Текущий слой, расположенной справа от кнопки Установить.

Текущим в чертеже может быть только один слой. Если вы назначите текущим другой слой, предыдущий слой перестанет быть текущим и будет рассматриваться AutoCAD наравне с остальными слоями. Смысл назначения слоя текущим заключается в том, что все объекты, создаваемые в области черчения, всегда размещаются на текущем слое и, соответственно, приобретают те свойства (цвет и ширина линий, тип линий, видимость и т. п.), которые назначены текущему слою.

18. Выберите в списке слой Высота 720 и щелкните на кнопке Установить. Текущим станет слой Высота 720 (рядом с его названием появится зеленая «галочка»), а в текстовой области Текущий слой будет выведено его название.

19. Щелкните на кнопке OK для закрытия диалогового окна Диспетчер свойств слоев.

20. В области черчения видимых изменений не произошло. Однако если вы посмотрите на раскрывающийся список слоев, расположенный на панели инструментов Слои, то заметите, что содержимое текущего элемента этого списка изменилось – вместо свойств слоя 0, которые отображались в этом списке до открытия окна Диспетчер свойств слоев, теперь в нем отображаются свойства слоя Высота 720.

Однако на самом чертеже ничего не изменилось, поскольку все объекты по прежнему находятся на нулевом слое. Что ж, давайте займемся расположением объектов по слоям. Кстати, используемый по умолчанию во всех чертежах нулевой слой как нельзя лучше подходит к нашей задаче – мы будем считать, что он соответствует уровню пола, то есть высоте 0 мм. На этом слое мы оставим только габаритные линии рабочей зоны, а все остальные объекты разнесем на соответствующие слои.