6.3. Создание новых объектов с использованием слоев

Рассмотрим подробнее создание новых объектов с использованием слоев.

6.3.1. Управление видимостью слоев с помощью замораживания

Для того чтобы слой (и, соответственно, находящиеся на нем объекты) стал невидимым, в AutoCAD его нужно либо заморозить, либо отключить. С точки зрения привычной терминологии было бы проще отключать слои. Тем не менее, мы будем не отключать их, а замораживать. Дело в том, объекты, находящиеся на отключенных слоях, оставаясь сами невидимы, могут скрывать под собой другие объекты. При черчении на плоскости это не имеет существенного значения, однако, во-первых, отключение слоев не уменьшает расходы на прорисовку изображения чертежа, что может быть существенно при создании сложных чертежей, а во-вторых, вам нужно вырабатывать правильные навыки применения AutoCAD. Именно поэтому мы будем в дальнейшем применять замораживание слоев.

33. Щелкните на кнопке Диспетчер свойств слоев панели инструментов Слои. В открывшемся окне Диспетчер свойств слоев вы увидите перечень всех слоев, причем отсортированный не в порядке их создания, а по алфавиту.

34. Щелкните на слое СБлок Н, а затем, нажав и удерживая Shift, щелкните на слое СБлок П. (В данном случае, поскольку нам нужно выделить всего два слоя, можно было также перед щелчком на втором слое нажать и удерживать Ctrl.)

35. Переместите указатель на столбец Заморозить, в котором находятся пиктограммы в виде «солнышек».

36. Щелкните на «солнышке» в любой из двух выделенных строк. «Солнышки» исчезнут, а вместо них появятся «снежинки»

37. Щелкните на кнопке OK для закрытия окна Диспетчер свойств слоев.

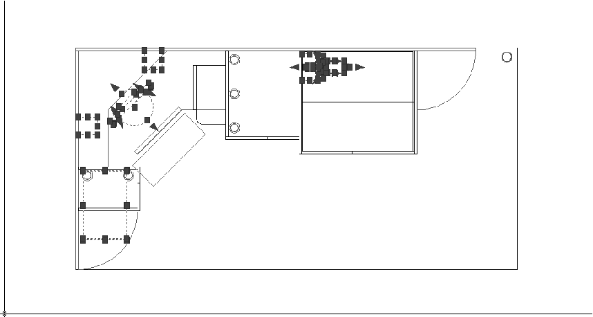
38. Охватите окном масштабирования контур системного блока и измените масштаб изображения так, чтобы хорошо видеть системный блок.

39. Последовательно щелкните на всех элементах чертежа, обозначающих контур системного блока (пять линий и две дуги), чтобы получить результат, представленный на рис. 6.19.

Рисунок 6.8. Чертеж 19

Чертеж 19

40. Раскройте список слоев панели Слои и выберите из него слой СБлок Н (обратите внимание на пиктограммы «снежинок», которые отображаются в этом списке для слоев СБлок Н и СБлок П)

41. AutoCAD отобразит сообщение о том, что вы переместили 7 объектов на замороженный или отключенный слой, вследствие чего эти объекты будут удалены из текущего набора выделенных объектов. Щелкните в этом окне на кнопке OK.

42. Контур системного блока исчезнет с чертежа. Восстановите предыдущий масштаб черчения.

43. Раскройте список слоев панели инструментов Слои и щелкните на пиктограмме «снежинки» в строке СБлок Н. Вместо «снежинки» появится «солнышко» – это означает, что слои можно замораживать и размораживать и с помощью списка слоев панели Слои. Правда, так можно заморозить или разморозить только один слой – использовать нажатие Shift и Ctrl для выбора нескольких слоев в списке нельзя.

44. Щелкните в любом месте области черчения для закрытия списка, и на чертеже тут же появится контур системного блока, цвет линий которого будет соответствовать цвету линий слоя СБлок Н.

45. Щелкните на кнопке Заморозить слой панели инструментов Слои II

46. AutoCAD предложит в командном окне щелкнуть на объекте, который находится на слое, подлежащем замораживанию. Щелкните на любой линии контура системного блока. Поскольку все линии контура системного блока находятся на слое СБлок Н, этот слой будет тут же заморожен, а контур системного блока перестанет отображаться на чертеже.

47. Нажмите Enter для завершения команды Слоизам.

Продолжим «очистку» чертежа от «лишних» объектов.

48. Раскройте список слоев панели инструментов Слои и заморозьте слой Высота 1188.

49. Последовательно выделите контуры оборудования (сканера, дисплея и лампы), а также полочек стоек для компакт_дисков (рис. 6.20).

Рисунок 6.9. Чертеж 20

Чертеж 20

50. Снова раскройте список слоев панели инструментов Слои  и щелкните на названии слоя Высота 1188. На экране появится диалоговое окно с сообщением о том, что 38 выделенных объекта будут перемещены на замороженный слой. Щелкните на кнопке OK для закрытия этого окна. Все выделенные объекты перестанут отображаться на чертеже.

51. Заморозьте слой Высота 320 и переместите на него объекты, показанные на рис. 6.21 (две боковые стенки малой тумбы, боковые стенки тумбы системного блока и большой тумбы, фасад большой тумбы и горизонтальная линия контура полки парты).

Рисунок 6.10. Чертеж 21

Чертеж 21

52. Щелкните на каком_нибудь объекте, который все еще находится на нулевом слое (например, на одной из габаритных линий), а затем щелкните на кнопке Сделать слой объекта текущим

53. Текущим станет снова нулевой слой, о чем можно будет судить по изменившемуся состоянию списка слоев панели инструментов Слои, а также по сообщению, выведенном AutoCAD в командном окне. Заморозьте слой Высота 720.

54. Нажмите Правка Выбрать все для выделения всех объектов чертежа.

55. Нажмите Shift и, удерживая ее нажатой, охватите рамкой выделения контуры вырезов под ручки, которые находятся посредине контуров фасадов тумб и выдвижного ящика парты. Поскольку при выделении вы удерживаете Shift, выделенные объекты будут не добавляться в набор, а удаляться из него.

56. Продолжая удерживать Shift, щелкните на двух габаритных линиях рабочей зоны для удаления их из набора выделенных объектов.

57. Получив набор выделенных объектов, представленный на рис. 6.22, отпустите Shift и переместите все выделенные объекты на слой Высота 720.

Рисунок 6.11. Чертеж 22

Чертеж 22

На экране должны остаться только три прямоугольных контура вырезов под ручки и две габаритные линии рабочей зоны.

58. Разморозьте слой Высота 720 и назначьте его текущим, а затем заморозьте слой 0. Чертеж должен приобрести вид, показанный на рис. 6.23.

Рисунок 6.12. Чертеж 23

Чертеж 23

59. Сохраните текущее состояние чертежа в файле Work0631.dwg.