Содержание
В главе использованы материалы [KLIM].
В соответствии с требованиями стандартов, вид спереди (он же – главный вид), чертится под видом сверху. Такое расположение продиктовано не только и не столько соображениями эстетики, сколько здравым смыслом: чертеж, на котором вид спереди находится строго под видом сверху не только легче воспринимать, но и легче создавать. Последнее объясняется тем, что для получения элементов чертежа главного вида можно использовать вертикальные линии, проходящие из характерных точек чертежа вида сверху до пересечения с горизонтальными линиями основных высот (рис. 8.1).
Первая высота, которую нам нужно создать – это нулевая высота, соответствующая уровню пола. Для получения горизонтальной линии, которая будет обозначать нулевую высоту, выполните следующие операции.
1. Откройте файл Work081.dwg и сохраните под именем Work0811.dwg
2. Воспользовавшись командой Слои, создайте новый слой Вид спереди (индекс цвета – 96) и назначьте его текущим.
3. Разморозьте нулевой слой, выделите нижнюю горизонтальную линию границы рабочей зоны и сместите ее вниз с помощью команды Подобие на 3000 мм.
4. Поскольку смещенная линия располагается вне видимой части чертежа, нужно изменить масштаб просмотра. Воспользуйтесь командой Зумировать границы для изменения масштаба по границам чертежа.
5. С помощью команды Слои переместите ставшую видимой линию на текущий слой, а затем заморозьте нулевой слой.
6. Запустите инструмент Зумирование в реальном времени и отрегулируйте масштаб просмотра таким образом, чтобы линия нулевой высоты на виде сверху находилась на некотором расстоянии от
нижней границы области черчения, как показано на рис. 8.2.
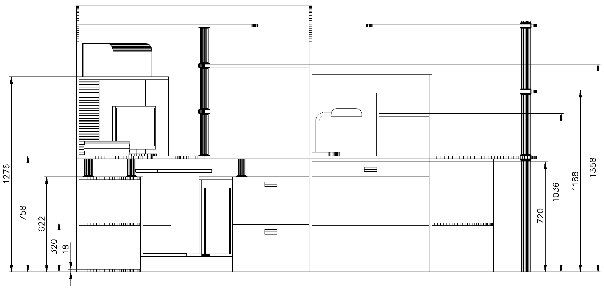
7. Руководствуясь рис. 8.1, сместите базовую линию несколько раз вверх (на 18, 320, 622, 720, 758, 1036, 1188, 1276 и 1358 мм), перед каждым запуском команды Подобие устанавливая соответствующую величину смещения.
8. Снова воспользовавшись инструментом Подобие, сместите базовую линию вверх на 1620, а затем – на 1740 мм. Первая полученная линия обозначает высоту, которая соответствует слою Вид сверху (верхняя поверхность больших консольных полок), а вторая – верхней поверхности задней стенки рабочей зоны. Результат должен быть таким, как показано на рис. 8.3._
Остальные горизонтальные линии мы получим несколько позже, смещая только что созданные линии, а сейчас займемся созданием вертикальных линий, выходящих из характерных точек вида сверху (включая не только собственно слой Вид сверху, но и другие слои).
Нужные нам вертикальные линии можно было бы просто вычертить, используя инструмент Отрезок и соответствующие режимы привязки. Однако мы в данной ситуации применим несколько иной подход, заключающийся в использовании уже упоминавшихся в предыдущих главах маркеров выделения. Дело в том, что эти маркеры применяются не только для визуализации выделенных объектов, но и для их модификации. Во многих случаях изменение формы объекта с помощью маркера выделения оказывается предпочтительнее, чем применение обычных инструментов AutoCAD.
9. Убедившись в том, что включен режим привязки Конточка, начертите вертикальную линию от нижнего левого угла столешницы до линии нулевой высоты.
10. Щелкните на только что начерченной линии, чтобы на ней появились уже знакомые вам маркеры выделения.
11. Щелкните на маркере выделения, расположенном на верхнем конце линии. Цвет маркера изменится с синего на красный, а в командной строке появится приглашение следующего вида.
** Растягивание ** Точка растягивания или [Базовая точка/Копировать/Отменить/Выход]
12. Это означает, что, выбрав маркер, вы тем самым запустили инструмент Растянуть. Данный инструмент всегда запускается первым при выборе любого маркера выделения. Поскольку в данном случае инструмент Растянуть нам не нужен, нажмите Пробел для перехода к следующему инструменту.
13. Теперь в сообщении командного окна говорится о том, что запущен инструмент Переместить. Нажмите Пробел несколько раз, чтобы убедиться в том, что после выбора маркера выделения AutoCAD каждое нажатие этой клавиши приводит к циклическому выбору одного из пяти инструментов (Растянуть, Переместить, Повернуть, Масштаб, Зеркальное отражение)).
14. Нажав Пробел несколько раз, вернитесь к инструменту Переместить, а затем введите в командном окне Копировать для запуска режима Копировать этого инструмента.
Примечание. Каждый из пяти инструментов, которые можно запустить с помощью маркеров выделения, поддерживает режим Копировать (Copy), обеспечивающий внесение всех изменений не в исходный объект, а в его копию. Кроме того, копирование с помощью маркеров выделения позволяет использовать несколько дополнительных функциональных возможностей, недоступных при обычном использовании инструмента Копировать.
15. Используя режимы объектной привязки и отслеживание объектной привязки, выберите точку, которая находится на пересечении перпендикуляров, образующих правый нижний угол габаритов рабочей зоны для копирования в эту точку выделенной линии (рис. 8.4).
16. Режим копирования останется по_прежнему включенным. Выберите нижние точки вертикальных линий, обозначающих левую и правую границу крышки парты. В результате копия исходной линии появится возле каждой из этих двух точек. Введите Выход для завершения работы инструмента Переместить, а затем нажмите Esc для отмены отображения маркеров выделения. Как легко заметить (рис. 8.5), две последние линии не достигают линии нулевой высоты. Это не удивительно: поскольку мы выполняли копирование исходной
линии, все ее копии имеют одинаковую длину, независимо от того, где находятся их начальные точки. Однако это не имеет особого значения, поскольку мы всегда сможем их продлить для получения нужной длины (в том числе, с использованием инструмента Растянуть, запускаемого с помощью маркера выделения).
Как нетрудно догадаться, для получения вида спереди вам предстоит обрезать пересекающиеся горизонтальные линии высот и вертикальные линии, проведенные из характерных точек вида сверху, продлевая эти линии в случае необходимости. Для удобства мы сначала сформируем те элементы чертежа, которые относятся к нижней части рабочей зоны, а затем займемся верхней частью.
17. Заморозьте слой Вид сверху и разморозьте слой Высота 320, как наиболее информативный для решения текущей задачи.
18. Продлите с помощью инструмента Удлинить до нулевой высоты две вертикальные линии, обозначающие границы крышки парты.
19. С помощью маркера выделения только что продленной вами левой вертикальной линии скопируйте ее в точку, обозначающую правую границу малой тумбы.
20. Выполните аналогичную операцию над правой вертикальной линией, обозначающей контур парты, скопировав ее в точку, которая представляет на чертеже правую границу задней стенки рабочей зоны, а затем продлите эту линию до нулевой высоты (рис. 8.7).
21. Запустите инструмент Обрезать и выберите в качестве секущих линию нулевой высоты, линии высот 18 и 622, а также вертикальную линию, обозначающую границу малой тумбы (рис. 8.8).
22. Нажмите Enter для завершения выбора, а затем щелкните на сегментах вертикальной линии, выступающих ниже высоты 0 и выше высоты 622.
23. Щелкните на горизонтальной линии, обозначающей высоту 18, правее только что полученного отрезка вертикальной линии.
24. Нажмите Enter для завершения команды Обрезать. Результат должен быть таким, как показано на рис. 8.9.
25. Измените масштаб просмотра так, чтобы вид спереди занимал почти всю область черчения.
26. С помощью инструмента Подобие сместите на 18 мм вниз горизонтальные линии высот 320, 622 и 758, а также на 18 мм вправо вертикальные линии границ контуров малой тумбы и правой границы парты. Затем сместите на 18 мм влево вертикальную линию левой границы парты (рис. 8.10).
27. Обрежьте линии так, как показано на рис. 8.11, для формирования контуров малой тумбы, парты и угловой полки дополнительного рабочего места.
12. Восстановите масштаб просмотра и создайте вертикальные линии, обозначающие на виде спереди вертикальные контуры большой тумбы, тумбы системного блока, нижней и верхней угловых полок, порожка и фасада малой тумбы, как показано на рис. 8.12.
28. Скопируйте линию нулевой высоты вверх на 100 мм, а затем полученную линию – еще на 18 мм вверх.
29. Обрежьте две полученные горизонтальные линии по правой вертикальной границе контура малой тумбы и левой вертикальной границе контура парты.
30. Продлите созданные в п. 12 вертикальные линии до линии нулевой высоты, а затем обрежьте полученные вертикальные и горизонтальные линии для формирования оставшихся объектов нижней части рабочей зоны, как показано на рис. 8.13. (Для создания контура порожка необходимо верхнюю линию контура нижней полки скопировать вверх на 2 мм – для этого лучше всего изменить масштаб просмотра.)
Продолжим создание главного вида рабочей зоны и приступим к созданию чертежей объектов, которые находятся над столешницей.
31. Заморозьте слой Высота 320 и разморозьте слой Высота 1090.
32. Используя инструменты Отрезок и Нормаль, проведите вертикальную линию от правого нижнего угла контура боковой стенки правой стойки для компакт_дисков до пересечения с верхней горизонтальной линией, соответствующей высоте 758 мм (верхняя поверхность столешницы), как показано на рис. 8.14.
33. Используя копирование с помощью маркера выделения, скопируйте полученную линию в левый нижний угол прямоугольника, обозначающего контур боковой стенки правой стойки для компакт_дисков.
34. Не выходя из режима копирования инструмента Переместить скопируйте линию к нижним точкам контура боковой стенки левой стойки для компакт_дисков, к середине вертикальной линии контура полки, а также к нижним точкам контура средней стенки парты.
35. Сместите вниз на 18 мм три горизонтальные линии, соответствующие высотам 1036, 1188 и 1276 мм. Результат должен быть таким, как показано на рис. 8.15.