5.2. Создание окружностей и дуг с помощью инструмента «Круг»

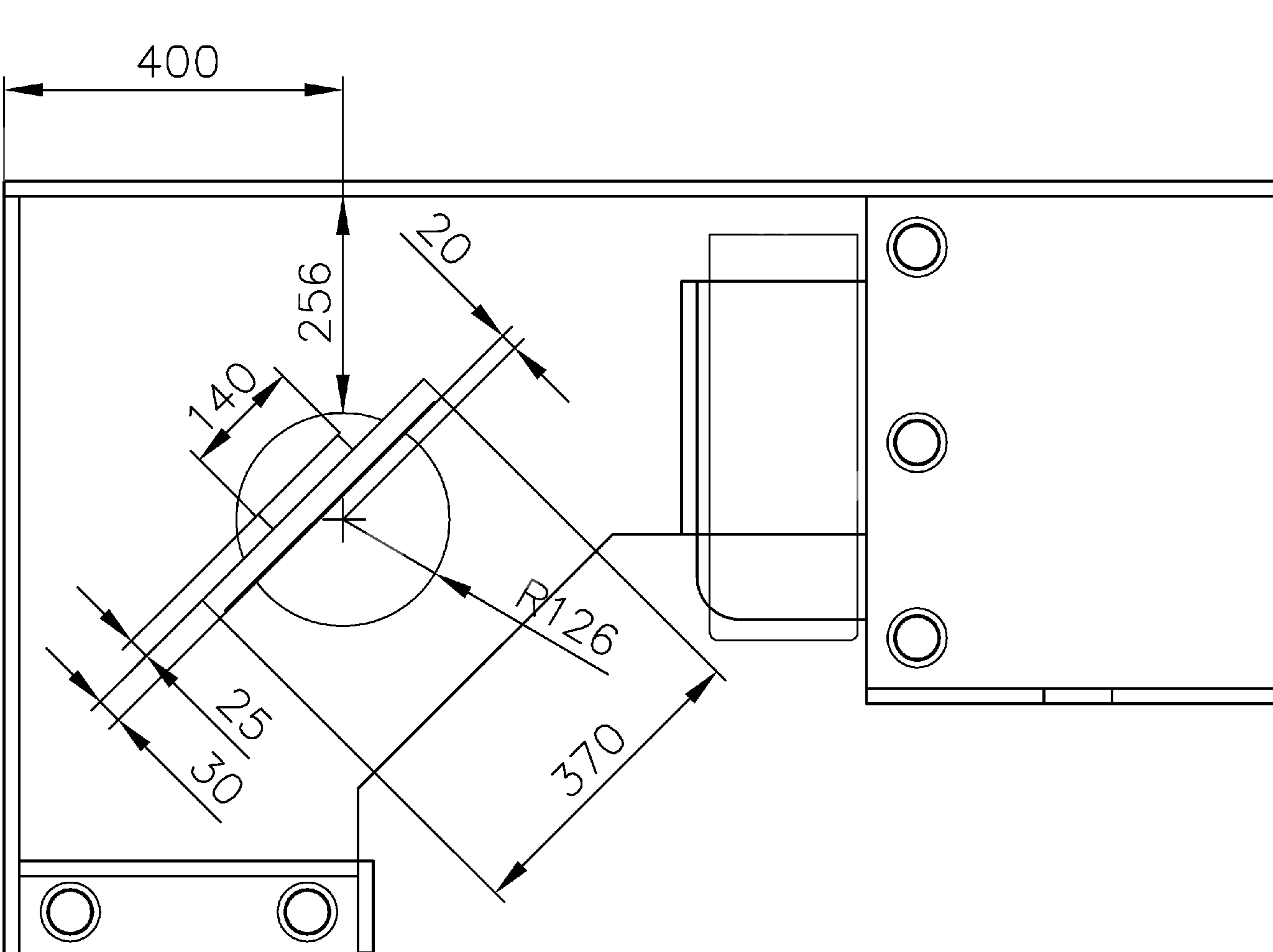
Теперь вам предстоит создать на чертеже изображение дисплея. Как видно из рис. 5.1 и 5.15 (некоторые элементы чертежа на рис. 5.15 не показаны), на виде сверху чертеж дисплея представляет из себя две дуги и три прямоугольника, развернутых относительно горизонтали на 45° (один из них, обозначающий углубление до поверхности экрана в корпусе дисплея, слишком мал, чтобы обозначить его на рис. 5.15).

Рисунок 5.13. Чертеж 15

Чертеж 15

Если провести соответствующие вычисления, то две нужные дуги можно построить, используя уже знакомый вам инструмент Дуга. Однако в данном случае гораздо проще воспользоваться инструментом создания окружностей Круг, а затем полученную окружность преобразовать в дуги. Вторая проблема состоит в том, что вычерчивать контуры дисплея под углом в 45° не очень удобно. Можно, конечно, воспользоваться режимом ОТС_ПОЛЯР, однако на практике бывает гораздо проще начертить объект в горизонтальном или вертикальном положении, а затем развернуть его на нужный угол. Именно такой метод мы и будем использовать, поскольку он является универсальным (далеко не всегда объекты будут повернуты на угол 45°). Наконец, третья задача, которую нам предстоит решить для создания чертежа дисплея, заключается в том, что нам не к чему привязаться – на чертеже нет ни одной опорной точки, которую мы могли бы использовать для привязки без предварительных подготовительных операций. Поэтому мы начертим дисплей в произвольной точке чертежа, а затем переместим его на нужно место и повернем на заданный угол. Именно так вы и будете часто поступать при черчении в AutoCAD в подобных ситуациях.

39. После выполнения последнего упражнения остался включенным режим ОТС_ПОЛЯР. Щелкните на кнопке-индикаторе ОРТО в строке состояния, чтобы выключить режим ОТС_ПОЛЯР и включить режим ОРТО.

40. Выберите из меню команду Рисование Круг. В открывшемся меню представлены шесть команд, соответствующих различным режимам применения инструмента Круг для построения окружностей. Первые два режима позволяют построить окружность по заданному центру и радиусу или диаметру. Следующие два – по двум или трем точкам. И, наконец, последние два режима основаны на использовании при построении окружности касательных и значения радиуса или только касательных.

41. Поскольку нам известен радиус окружности (126 мм, см. рис. 15.5), выберите из меню Рисование команду Круг Центр, радиус. AutoCAD предложит в командном окне задать координаты центра окружности. Поскольку, как было сказано выше, мы пока не можем привязаться к нужной нам точке, выберите произвольную точку на чертеже (например, включите режим привязки Конточка и выберите точку пересечения угловой и прямолинейной частей полки шириной 200 мм).

42. После задания координат центра окружности AutoCAD будет перемещать вместе с указателем-перекрестием контур будущей окружности. Введите в командном окне значение 126. AutoCAD создаст окружность заданного радиуса, после чего команда круг автоматически завершится.

5.2.1. Использование инструмента «Прямоугольник» с режимами привязки «Точка отслеживания» и «Центр»

Теперь вам нужно начертить два прямоугольника, представляющих корпус дисплея и узел его крепления к основанию. Для этого мы воспользуемся инструментом Прямоугольник  и уже знакомым вам режимом привязки Точка отслеживания , а также новым режимом привязки Центр.

43. Отключите режим ОРТО, щелкнув на соответствующей кнопке-индикаторе в строке состояния.

44. Запустите инструмент Прямоугольник. В ответ на приглашение AutoCAD задать координаты первой точки щелкните на кнопке Точка отслеживания, а затем – на кнопке Центр.

45. Переместите указатель-перекрестие в центр окружности и, когда AutoCAD распознает его, о чем вы узнаете по появлению маркера объектной привязки в виде небольшой окружности с центром, совпадающим с центром выбранной окружности, щелкните для захвата этой точки в качестве базовой.

46. Переместите указатель-перекрестие вверх. Как только AutoCAD распознает направление (рис. 5.17), введите в командном окне 20, поскольку прямоугольник, представляющий корпус дисплея, находится над центром окружности выше на 20 мм (см. рис. 5.15).

Рисунок 5.14. Чертеж 17

Чертеж 17

47. AutoCAD предложит ввести координаты второй точки. Введите в командном окне @370,30 (см. рис. 5.15). На чертеже появится прямоугольник, а команда Прямоугольник автоматически завершится.

48. Нажмите Enter для повторного запуска команды Прямоугольник, но в этот раз запустите режим привязки Середина.

49. Переместите указатель-перекрестие к середине верхней линии только что созданного прямоугольника и, как только AutoCAD распознает среднюю точку отрезка (рис. 5.18), щелкните для захвата ее координат.

Рисунок 5.15. Чертеж 18

Чертеж 18

50. В ответ на приглашение задать координаты второй точки введите @140,25 (см. рис. 5.15). Второй прямоугольник будет начерчен, а выполнение команды Прямоугольник снова автоматически завершится.

51. Повторите пп. 48-50, но в этот раз выберите в режиме привязки Середина середину нижней линии первого прямоугольника, а в ответ напредложение задать координаты второй точки введите @350,2.5. Созданный прямоугольник не показан на рис. 5.15 из_за своей малой толщины, но он нам понадобиться в последствии, поскольку он представляет на чертеже экран дисплея.