4.3.4. Использование «Копировать» и «Повернуть» и режима привязки «Середина»

Сначала мы скопируем прямоугольник, выбрав в качестве базовой среднюю точку нижней горизонтальной линии контура фасада, а затем разместим две его копии в соответствующих точках остальных фасадов.

131. Запустите инструмент Копировать и щелкните на одной из вертикальных линий прямоугольника для выделения, а затем нажмите Enter для завершения выбора.

Рисунок 4.42. Чертеж 60

Чертеж 60

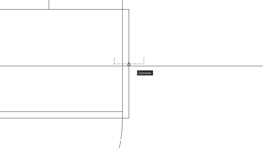
132. Включите режим привязки Середина  и подведите указатель перекрестие к середине нижней горизонтальной линии выделенного прямоугольника. Когда AutoCAD распознает эту точку (рис. 4.61), щелкните для захвата ее координат в качестве базовой точки копируемого объекта.

Рисунок 4.43. Чертеж 61

Чертеж 61

133. AutoCAD перейдет в режим копирования выбранного прямоугольника, о чем можно будет судить по наличию контура этого прямоугольника, «приклеенного» к указателю-перекрестию серединой нижней границы. Восстановите предыдущий масштаб просмотра с помощью инструмента Зумировать предыдущий.

134. Снова включите режим привязки Середина и, подведя указатель-перекрестие к середине нижней горизонтальной линии прямоугольника, обозначающего контур фасада большой тумбы, щелкните для вставки копии исходного прямоугольника в эту точку.

135. Опять включите режим привязки Середина и, подведя указатель-перекрестие к середине правой вертикальной линии прямоугольника, обозначающего контур фасада малой тумбы, щелкните для вставки копии исходного прямоугольника в эту точку.

136. Нажмите Enter для завершения копирования.

137. С помощью инструмента Окно зумирования увеличьте изображение фасада малой тумбы и запустите инструмент Повернуть.

138. В ответ на приглашение выбрать объекты, подлежащие повороту, щелкните на контуре только что вставленной копии прямоугольника, а затем нажмите Enter для завершения выбора.

139. AutoCAD предложит выбрать базовую точку. Снова щелкните на кнопке Середина и выберите точку, которая находится на середине нижней линии контура выбранного в п. 8 прямоугольника (рис. 4.64).

Рисунок 4.44. Чертеж 64

Чертеж 64

140. AutoCAD предложит задать угол поворота. Введите в командном окне 90 Прямоугольник будет повернут в нужное положение, а выполнение команды Повернуть завершится.

141. Восстановите предыдущий масштаб с помощью инструмента Зумировать предыдущий.

142. На этом создание чертежа, показанного на рис. 4.3, закончено. Сохраните чертеж в файле Work043-4.dwg.